Hikari 實驗室陳列室:Tzvia Kazayoff
Hikari 實驗室項目位于以色列 Benei Atarot 的一個受保護建筑中,這個定居點在有著 120 年歷史的罕見且令人著迷的圣殿建筑中。在曾經是家庭谷倉的地方,編織了一個具有多功能的概念大廳。


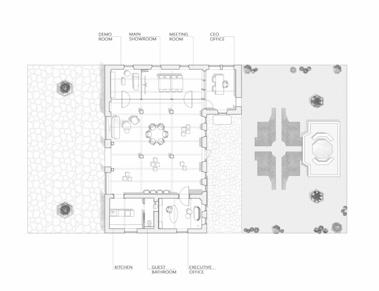
早在介紹項目和初步規劃階段,創新化妝品公司 Hikari 的主理人就提出了,為未來該空間在公司中的各種使用功能找到解決方案的重要性。如為美容師提供指導,為員工提供會議室,多樣化的座位區和娛樂區,可控制進入限權的 CEO 室,客人休息室,以及小廚房。


我們的設計理念符合 "Hikari 實驗室 "公司的一系列價值理念—— 天然材料,創新與多樣化技術的結合。這些理念是建立設計概念的指引,以及強調各個層面的共同基石是永恒的美學。如對裸露的石頭圣殿結構的設計結合和歷史保護。新與舊的結合體現在根據原始建筑外殼設計的窗口,以延續根植于結構中的歷史。


這一概念是通過選擇和使用具有當下審美的天然材料,如石頭、鐵和豪華的大理石地面來實現的,同時始終考慮到設計不依賴于過去的流行趨勢。此外,無數不同的技術已被納入功能和美學的解決方案,以適應現有結構和它所帶來的挑戰。

在內部開口的周圍,有白色的石膏和混凝土鑄件,以加強建筑的對稱性,達到高度精準性。木工設計結合了各種材料和照明方案,在共享空間中創造了一個獨特而愉快的展示。空調機上覆蓋著數控切割的金屬嵌件,裝配著公司的標志,以便不破壞美感。小廚房用薄薄的石頭表面覆蓋,融入了鐵銹紋理,與加固結構的梁柱相呼應。會議室和治療室是用推拉折疊的玻璃門系統分隔封閉的,以便達到功能模塊化,且方便改變功能用途。同樣,家具的選擇也達到了精益求精。Hikari 實驗室的移動家具是通過個人進口直接從意大利的主要商店訂購的。在客戶和 Tzvia Kazayoff 事務所之間的熱烈討論中,選擇了各種獨特的物品來完善設計,服務于設計概念。

歷史建筑的古老,與古典家具以及用最先進的現代技術制造的新穎化妝品的結合,給我們帶來了一個獨特的空間,為整體大于部分之和的概念賦予了新的意義。

分享文章,請標明來源: http://www.m.gumeihui.com/xuni/1276.html 免責聲明: 圖片內容來源網絡,本網站對作品圖片的版權未作證實,對作品的原創性、真實性不作保證,也不承擔由此產生的法律責任。如對作品版權有疑議,請及時與我們電話聯系:400-035-0358 進行刪除.