Diller Scofidio + Renfro:天津茱莉亞音樂學院
天津茱莉亞學院是一個集表演、訓練、研究、展覽和公共空間于一體的創意中心,旨在邀請公眾一起參與到音樂創作和表演的過程中。學院共設有管弦樂表演、室內樂表演、鋼琴藝術指導三個專業,開設面向天賦出眾的8-18歲青少年音樂學習者的大學預科項目、面向成人和音樂工作者的繼續教育項目及面向各年齡階段音樂學習者的樂器演奏培訓等項目,并定期面向公眾舉行高品質的公開演出。

這是中國首個頒發美國認證的音樂碩士學位的藝術機構,位于天津于家堡經濟技術開發區,占地總面積達到了45000平方米。學院建筑由負責茱莉亞音樂學院紐約校區2009年擴建設計項目的DS+R建筑事務所操刀設計。



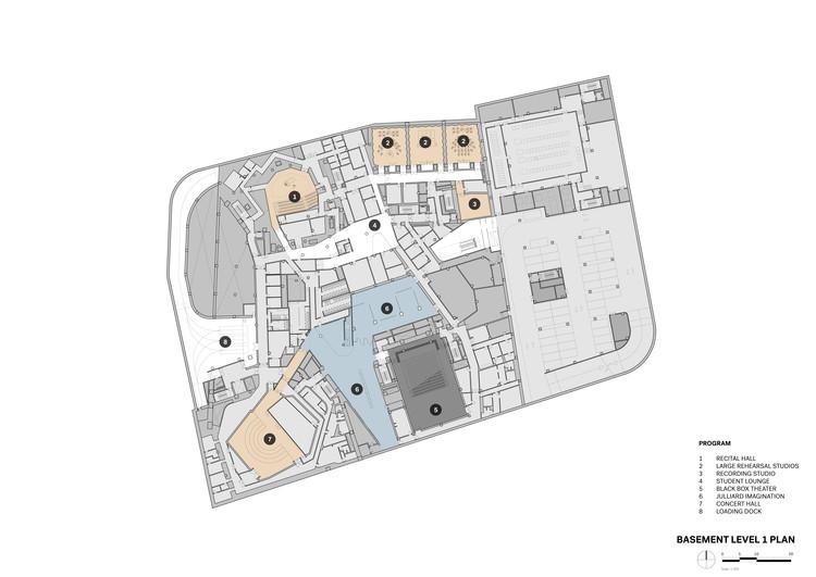
建筑由四個多面體塊組成,包括一間容納690人的音樂廳、一個295人的演奏廳、一個225座的黑匣子劇院以及相應的行政辦公和排練空間。五座玻璃懸橋將這些空間串聯在了一起,使得周邊的公園環境融入大樓內部,給學生、市民和職業音樂家們提供了一個相互切磋的彩排和表演空間。玻璃橋內設有教室、工作室和排練廳,以開放通透的空間設計,促使了各個群體間的交流溝通。



天津校區的設計在一定程度上呼應了紐約校區。兩者都是通過高超的遠程會議技術,確保了學生和教職工之間的合作和聯系。例如,茱莉亞想象空間(Juilliard Imagination space)就是一個配有數字連接技術的展覽空間,以支持茱莉亞各個校區教職工實現同步音樂會的直播。


分享文章,請標明來源: http://www.m.gumeihui.com/xuni/1095.html 免責聲明: 圖片內容來源網絡,本網站對作品圖片的版權未作證實,對作品的原創性、真實性不作保證,也不承擔由此產生的法律責任。如對作品版權有疑議,請及時與我們電話聯系:400-035-0358 進行刪除.